Zum Inhalt springen
  • Hochetagen
  • Umbau
  • Über uns
  • Kontakt
  • ESPAÑOL
  • Hochetagen
  • Umbau
  • Über uns
  • Kontakt
  • ESPAÑOL
  • Hochetagen
  • Umbau
  • Über uns
  • Kontakt
  • ESPAÑOL

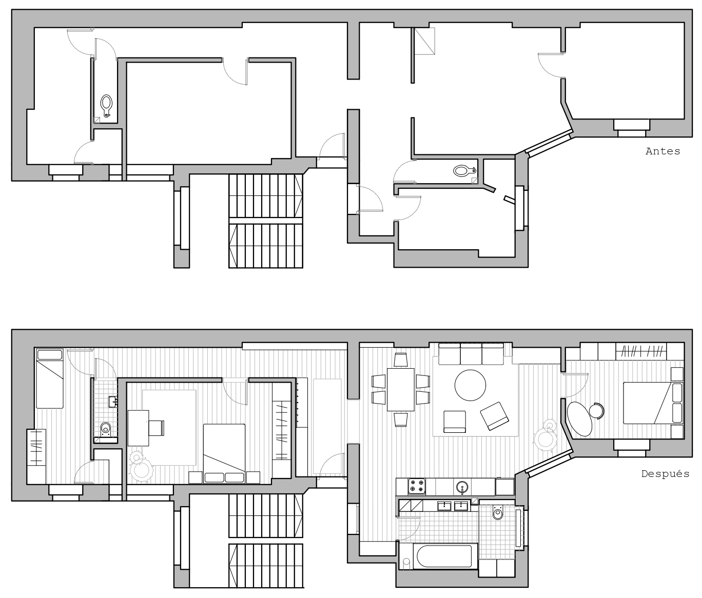
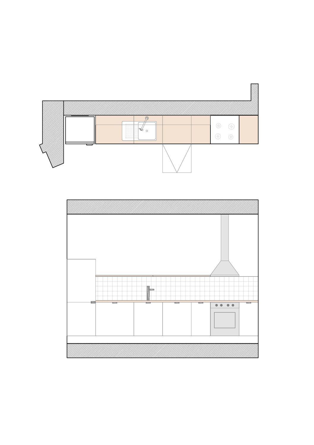
Home » Wohnen » Wohnungsrenovierung Weisestr.- Berlin

Linkedin-in Facebook-f Instagram

Impressum  |  Datenschutz |  by MINIMO WebDesign with ❤︎

© +espacio innenarchitektur

Linkedin-in Facebook-f Instagram

Impressum
Datenschutz
MINIMO WebDesign

© +espacio innenarchitektur

Wir verwenden Cookies, um dir die bestmögliche Nutzung unserer Website zu ermöglichen. Wenn du diese Website weiterhin besuchst, gehen wir davon aus, dass du damit einverstanden bist.